于是,家里的插線板這里接一個,那里接一個,搞的家里亂七八糟的,還很不安全!

據說,90%的人對開關面板和插座的安裝都是糊涂的,為此,小惠收集了行業大咖總結的多年經驗,圖文并茂告訴大家,家里的開關插座裝多高才好用?
以下清單數據,大家收好不謝!
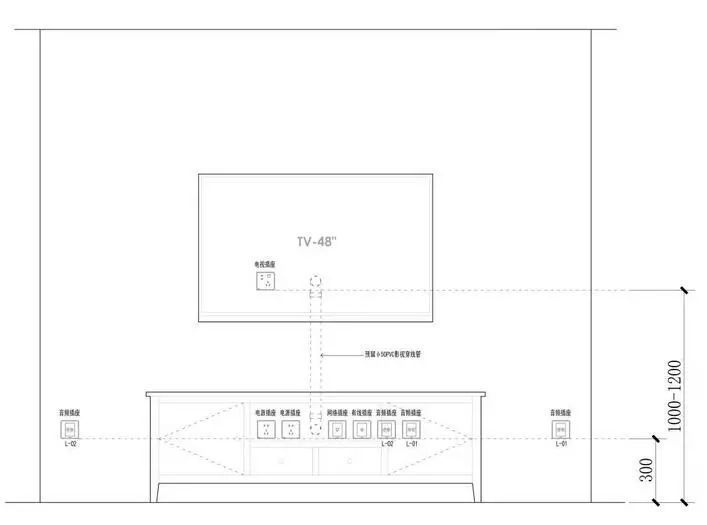
餐廳/客廳
1、 除設計要求以外,客廳的插座一般距地300㎜比較合適。

2、背景墻插座

2.1、如有隱藏電源線、視頻線需安裝在電視柜柜面的下面,一般距地200-300㎜位置。
2.2、壁掛電視的電源高度根據空間大小及電視尺寸確定,一般高度為1000-1200㎜。
2.3、預留一根50PVC管,作為影視穿線管,隱藏影視線達到美觀?。
臥室/書房

1、床頭雙控開關及插座安裝在床頭柜上面,距地600-750㎜是比較合適的距離?。
2、空調掛機插座距地1800-2000㎜,應安裝16A三孔插座。
3、電腦桌和其它桌上面的插座距地900㎜。

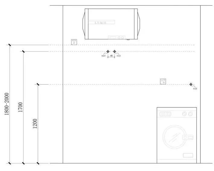
衛生間

1、洗衣機插座可安裝在1200㎜處或者低插350㎜。
注意:低插不要安裝在洗衣機后面。
2、電熱水器插座可安在1800-2000㎜處,建議用16A帶開關三孔插座,并加裝防濺盒。
3、馬桶后插座建議在距地350㎜安裝,并加裝防濺盒。

4、洗臉臺盆處要預留兩個插座(吹風機、消毒牙刷架),高度與開關一水平1300-1400㎜。
5、照明開關距地1300-1400㎜,距門邊100-200㎜??(同一房間內高度一致)。
廚房

1、廚房所有臺面插座距地1100㎜比較合適,建議安裝帶開關五孔插座。
2、抽油煙機插座一般距地1800-2200㎜,或放在煙機不銹鋼圍板里距地2200㎜,結合灶臺、操作臺的高度來選擇最佳的位置。
3、燃氣熱水器插座一般距地1800-2300㎜,插座要考慮離煙道的距離。
4、冰箱插座最好放在冰箱兩側距地高插1300㎜,或者低插500㎜。
5、迷你烤箱/微波爐,一般插座距地面1600㎜。
6、凈水機、小廚寶距地面500㎜,放在水槽柜里,插座加裝防濺盒。
7、燃氣報警器預留一個插座,安裝高度根據燃氣現場實際情況確定。

附:電路改造注意事項
1、開關和插座的安裝位置和數量,是布線時應慎重考慮的,原則是宜多不宜少。
2、一般情況下,零線為藍色,火線為紅色,地線為黃綠雙色線。
3、進戶線截面不應小于10平方毫米,燈具用1.5平方毫米的線,開關、插座、接地線用2.5平方毫米。安裝空調、熱水器等大功率電器的線路則應單獨走一路4平方毫米,插座使用16A三孔插座。
4、同一房間的開關或插座的高度要一致。
5、在鋪設電線的過程中,要遵循“火線進開關 ,零線進燈頭”的原則; 插座接線要做到“左零N右火L,接地PE在上”或是“上火下零”。為防止兒童觸電、用手指觸摸或金屬物插捅電源孔眼,一定要選用帶有保險擋片的安全插座。另外,需經常開關電源的電器,考慮使用帶開關的插座。
6、網絡線、電話線、電視線不能同電線穿在同一管路內。
7、新做暗盒線管和線盒連接處要用鎖扣進行連接。
- END -
免責聲明:此文內容為本網站轉載企業宣傳資訊,僅代表作者個人觀點,與本網無關。文中內容僅供讀者參考,并請自行核實相關內容。如用戶將之作為消費行為參考,本網敬告用戶需審慎決定。本網不承擔任何經濟和法律責任。